Если цена в объявлении изменится, мы сразу сообщим вам об этом на электронную почту.
Нажимая «Подписаться», вы соглашаетесь с правилами.
продам дом, Имени Панны Козловой (Золотая рыбка СНТ), 275 290 000 ₽
14 мая 2025
Дата публикации объявления
Обн. вчера
Дата обновления объявления
12
Количество просмотров (+ просмотры за сегодня)
12 595 ₽/м²
Чистая продажа
Термин "Чистая продажа" означает, что в квартире никто не прописан или
есть куда выписаться и вывезти вещи. Это лучший вариант для покупателя.
Вероятность срыва сделки минимальна.
Этажей2
Площадь участка6 соток
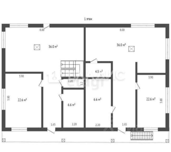
Общая площадь420 м2
ЭлектричествоЕсть
Код объекта: 1587208. Исключительное предложение для тех, кто ищет просторное жильё в живописном месте! Продаётся двухэтажный дом площадью 420 кв. м в СНТ ''Золотая рыбка'' на улице имени Панны Козловой, 27. Дом построен в 2023 году из блочного материала.
Дом идеально подходит для круглогодичного проживания. В доме 9 комнат, просторная жилая площадь составляет 380 кв. м., три санузла (один раздельный и два совмещённых). Участок площадью 6 соток обеспечен водоснабжением из скважины (94 метра) и электричеством (свет 15кВт,но можем сделать 30кВт) заведено в дом но без разводки, подъезд к участку: половина асфальт, а другая половина дороги засыпана щебенкой. В доме большое подвальное помещение. Септика нет, но выкопана под него яма, канализация по дому проведена.
Код объекта: 1587208. Исключительное предложение для тех, кто ищет просторное жильё в живописном месте! Продаётся двухэтажный дом площадью 420 кв. м в СНТ ''Золотая рыбка'' на улице имени Панны Козловой, 27. Дом построен в 2023 году из блочного материала.
Дом идеально подходит для круглогодичного проживания. В доме 9 комнат, просторная жилая площадь составляет 380 кв. м., три санузла (один раздельный и два совмещённых). Участок площадью 6 соток обеспечен водоснабжением из скважины (94 метра) и электричеством (свет 15кВт,но можем сделать 30кВт) заведено в дом но без разводки, подъезд к участку: половина асфальт, а другая половина дороги засыпана щебенкой. В доме большое подвальное помещение. Септика нет, но выкопана под него яма, канализация по дому проведена. Разрешение на строительство есть, но дом не оформлен, оформить его и сделать прописку возможно после того, как дом будет достроен и накрыт крышей.
Это прекрасное место для большой семьи или тех, кто планирует организовать комфортное пространство для отдыха и работы. С окон дома открывается прекрасный вид на горы и город. Дом расположен всего в 10 километрах от города, что обеспечивает удобный доступ ко всем необходимым инфраструктурным объектам, сохраняя при этом тишину и спокойствие загородной жизни.
Звоните нам прямо сейчас, чтобы узнать больше и договориться о просмотре! Мы гарантируем безопасную сделку и юридическую поддержку нашим Клиентам. Поможем одобрить ипотеку с сниженной ставкой.