Если цена в объявлении изменится, мы сразу сообщим вам об этом на электронную почту.
Нажимая «Подписаться», вы соглашаетесь с правилами.
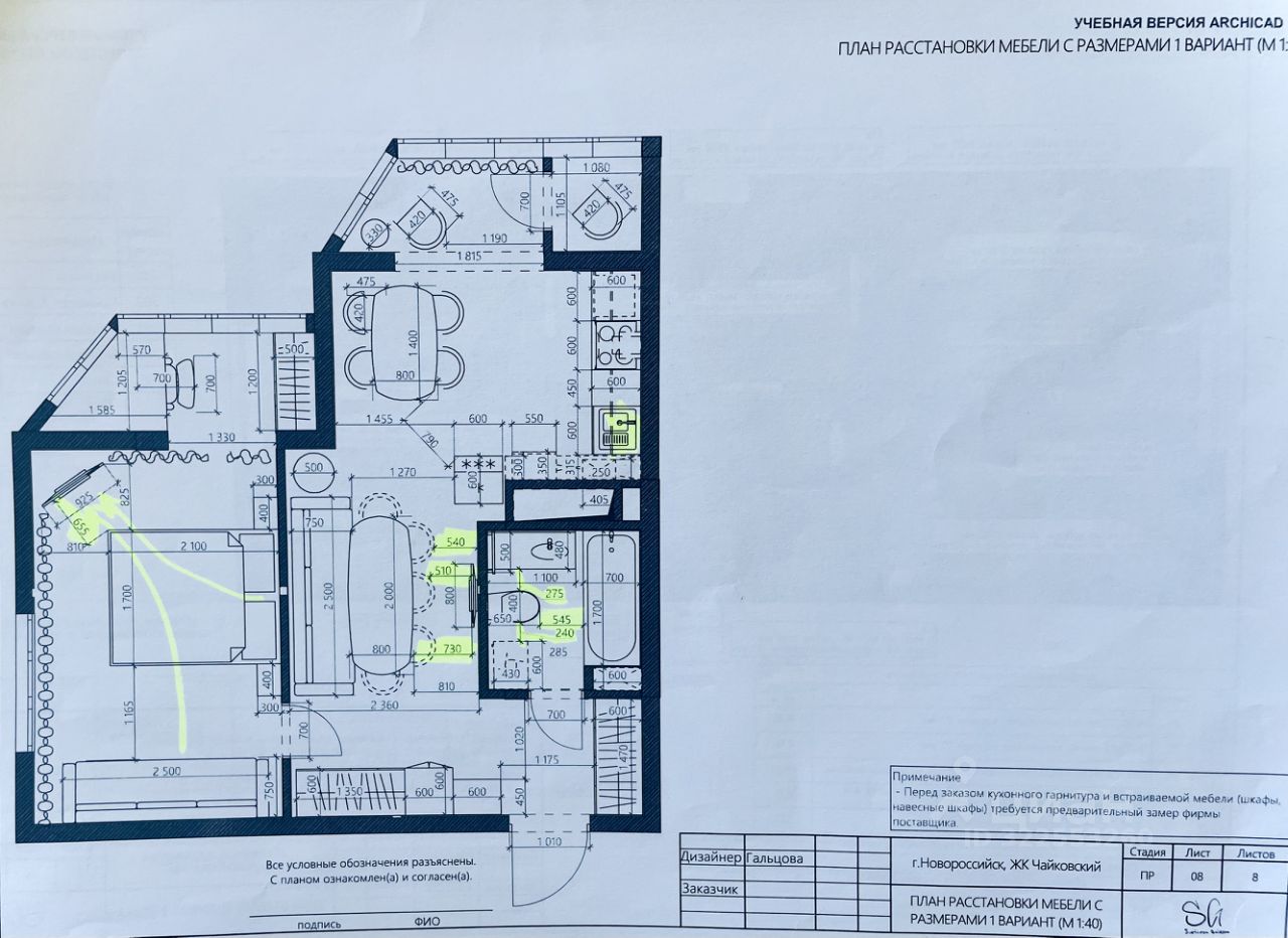
продам 1-к, Чайковского, 10а8 300 000 ₽
4 окт
Дата публикации объявления
Обн. 2 апр
Дата обновления объявления
5
Количество просмотров (+ просмотры за сегодня)
172 199 ₽/м²
Чистая продажа
Термин "Чистая продажа" означает, что в квартире никто не прописан или
есть куда выписаться и вывезти вещи. Это лучший вариант для покупателя.
Вероятность срыва сделки минимальна.
Собственник. Квартира в самом центре. 8 этаж, в квартире тихо, шума от дорог нет, вид хороший, и невысоко. Квартира расположена вдали от лифта. Автономное отопление.
В квартире выполнены:
1. Работы по электрике 95%. Качественный кабель ГОСТ, сечение 1.5-свет, 2.5-розетки (осталось собрать щиток). Разводка ТВ кабеля и интернет. 2. Подготовлены стены к поклейке обоев. 3. Сделаны откосы на окнах (чистовая). Вскрыты ниши под окнами, хорошо запенены и зашпаклеваны. 4. Гипсокартоном зашита ниша на кухне. Вложено в ремонтные работы-200 т.р.
Квартира светлая и теплая. Покупали для себя. Планировали сдвинуть на 50 см стену (не несущую), тогда можно будет сделать гостиную, поставить диван и ТВ, на последнем фото показано.
Собственник. Квартира в самом центре. 8 этаж, в квартире тихо, шума от дорог нет, вид хороший, и невысоко. Квартира расположена вдали от лифта. Автономное отопление.
В квартире выполнены:
1. Работы по электрике 95%. Качественный кабель ГОСТ, сечение 1.5-свет, 2.5-розетки (осталось собрать щиток). Разводка ТВ кабеля и интернет. 2. Подготовлены стены к поклейке обоев. 3. Сделаны откосы на окнах (чистовая). Вскрыты ниши под окнами, хорошо запенены и зашпаклеваны. 4. Гипсокартоном зашита ниша на кухне. Вложено в ремонтные работы-200 т.р.
Квартира светлая и теплая. Покупали для себя. Планировали сдвинуть на 50 см стену (не несущую), тогда можно будет сделать гостиную, поставить диван и ТВ, на последнем фото показано.
Полная стоимость в ДКП, в собственности 3 года, никто не прописан. Торг, возможен обмен на квартиру в Геленджике.