3-к, 8-я Щель, 30 Показать на карте
Новороссийск
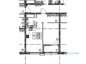
Арт. 132196751 Продается уникальная трехкомнатная квартира на 2 этаже 3-этажного дома в Приморском районе! Особенности квартиры:Выполнен качественный ремонт с использованием исключительно натуральных материалов: стены и потолок из гипсокартона, пол во всей квартире покрыт пробкой, кухня из натурального дерева.Удачная перепланировка позволила значительно увеличить пространство: теперь это комфортная объединенная кухня-гостиная, две отдельные комнаты и просторный санузел.Два балкона с панорамным витражным остеклением создают ощущение света и простора.Межкомнатные и ванные двери выполнены из массива дерева.Надежная входная сейф-дверь Гардиан оснащена качественными замками для вашей безопасности.Вся электрика, включая розетки, выключатели, УЗО и автоматы, от известного производителя Schneider, что гарантирует надежность и безопасность.Для защиты бытовой техники установлен инверторный стабилизатор напряжения в домашней электросети.Система отопления оборудована теплосчетчиком, что позволяет самостоятельно регулировать подачу тепла и экономить на коммунальных платежах. Установлены фильтры для воды.Квартира частично меблирована. Инфраструктура дома и района:На территории дома есть своя детская площадка.Рядом расположены продуктовые магазины и пункты выдачи интернет-заказов.Отличная транспортная доступность: остановки общественного транспорта в шаговой доступности.Предусмотрены удобные парковочные места.Минимум соседей: только сверху и снизу, что обеспечивает дополнительный комфорт и тишину.Эта квартира — идеальное сочетание комфорта, качества и удобства. Не упустите свой шанс, звоните для записи на просмотр!
75 м2
2 / 3 этаж
Монолит
- Показать контакты
- Добавить в избранное
75 м2
2 / 3 этаж
Монолит
9 500 000
126 667 /м2
