Уникальное инвестиционное предложение! Продажа коммерческих нежилых помещений в центре Новороссийска — город с богатой историей и развитым туризмом! Адрес: Краснодарский край, г. Новороссийск, ул. Советов, 36
Почему выбирают Новороссийск?
Многообразие туристических и культурных достопримечательностей — Малая Земля, крейсер ''Кутузов'' Прекрасная набережная и живописные окрестности — Абрау-Дюрсо, Мысхако Галечные пляжи, чистое море в бухте. Винный туризм — заводы Мысхако и Абрау-Дюрсо привлекают туристов со всего мира Индустриальный портовый город с развитой инфраструктурой, возможностями для бизнеса и турпотока
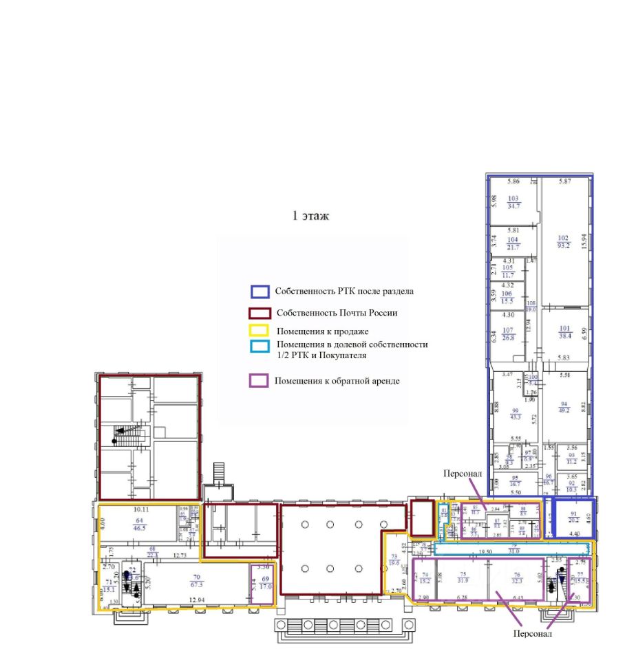
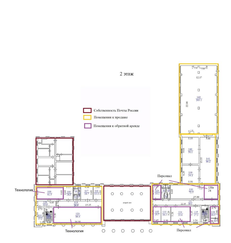
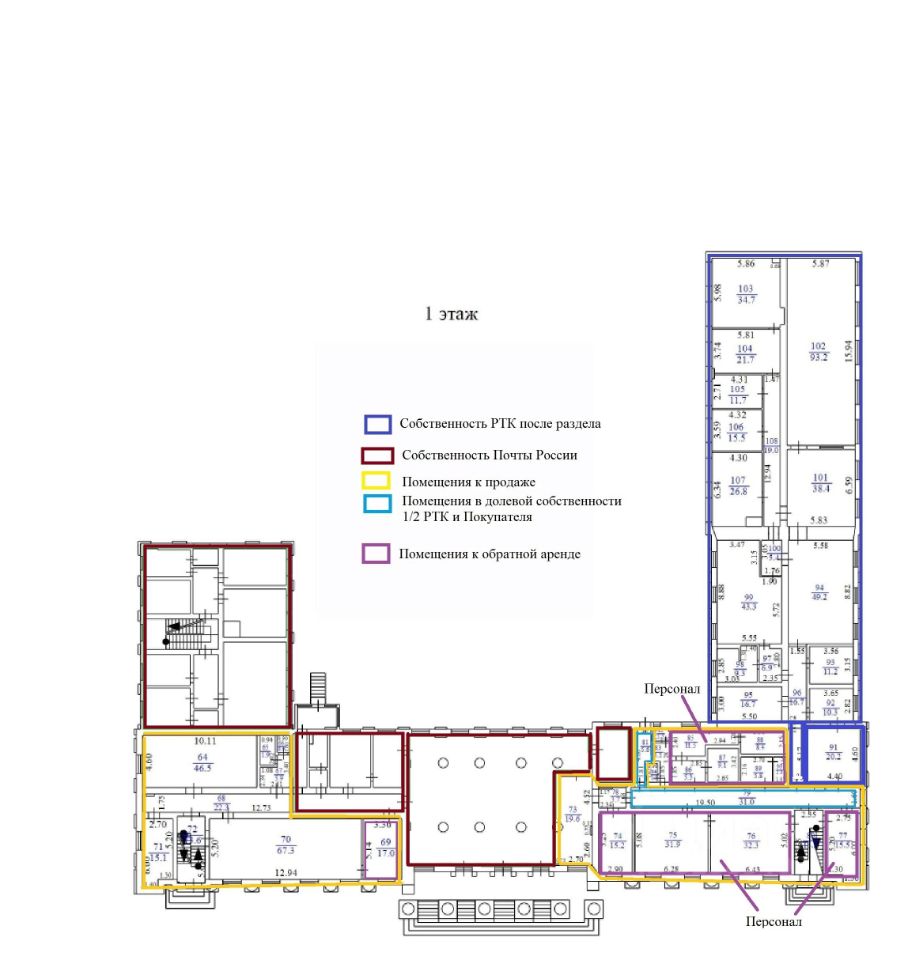
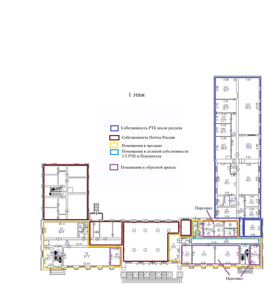
Объект реализации:
Нежилые помещения Площадь нежилых помещений 2 791,15 кв.м.
Уникальное инвестиционное предложение! Продажа коммерческих нежилых помещений в центре Новороссийска — город с богатой историей и развитым туризмом! Адрес: Краснодарский край, г. Новороссийск, ул. Советов, 36
Почему выбирают Новороссийск?
Многообразие туристических и культурных достопримечательностей — Малая Земля, крейсер ''Кутузов'' Прекрасная набережная и живописные окрестности — Абрау-Дюрсо, Мысхако Галечные пляжи, чистое море в бухте. Винный туризм — заводы Мысхако и Абрау-Дюрсо привлекают туристов со всего мира Индустриальный портовый город с развитой инфраструктурой, возможностями для бизнеса и турпотока
Объект реализации:
Нежилые помещения Площадь нежилых помещений 2 791,15 кв.м., плюс неоформленная мансарда (4 этаж) — 704.9 кв.м. Кадастровый номер: 23:47:0301008:96 Общая площадь после оформления мансарды: 3496.05 кв.м. Год постройки: 1957
Ключевые характеристики: На этапе кадастровых работ — идет оформление площади мансарды Внутреннее состояние: удовлетворительное
Коммуникации: Электроснабжение - с помещениями не передается - покупатель самостоятельно заключает договор с ресурсоснабжающей организацией. Водоснабжение и водоотведение Газоснабжение Автономное отопление (газовый котёл)
Земельный участок: Площадь: 3886 кв.м. Кадастровый номер: 23:47:0301008:17 В данный момент — право не оформлено, категория: земли населённых пунктов Разрешенное использование: для здания связи
Расположение объекта: Объект в центре Новороссийска, в районе с хорошо развитой инфраструктурой, окружен многоэтажной жилой застройкой, торговыми и общественно-деловыми объектами. Интенсивный пешеходный трафик возле здания. Близкая остановка общественного транспорта ''Гостиница Черноморская'' — всего 200 метров.
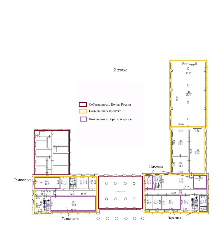
Обязательное условие: На объекте размещен персонал в количестве 22 чел. и оборудование ПАО ''Ростелеком'' при продаже объекта в обратную аренду на 11 мес. войдут помещения 1 и 2 этажей, ориентировочной площадью 864,70 кв.м.
Условия продажи: Прямая продажа от собственника - юридического лица ПАО ''Ростелеком''
Грамотное оформление сделок и юридическая чистота объектов гарантированы!
Мы рассматриваем предложение от брокеров и риэлторов и готовы заключить договор на оказание услуг. У нас также есть много других объектов недвижимости по Краснодарскому краю.
Не упустите возможность приобрести нежилые помещения в самом центре Новороссийска! Звоните прямо сейчас, чтобы узнать больше и организовать просмотр!