Отдельностоящее здание
Исаева, 6 Показать на карте
Исаева, 6 Показать на карте
Новороссийск
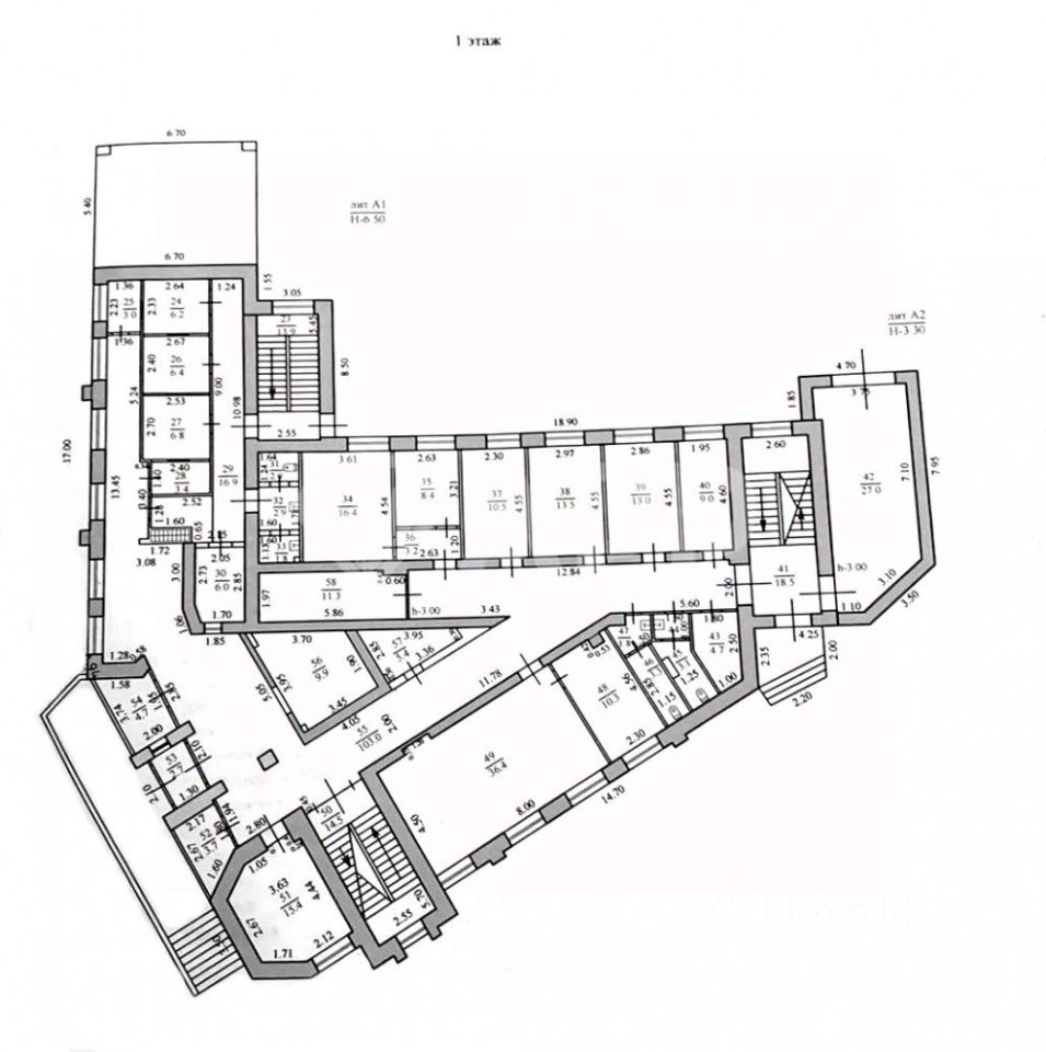
АУКЦИОН. Объект реализуется на торгах в электронной форме.Предлагается к продаже объект коммерческой недвижимости в Новороссийске - двухэтажное строение площадью 1 227, 3 кв. м по адресу: Центральный округ, ул. Исаева, д. 6. Объект находится в собственности, без обременений, свободен от арендаторов.Кадастровый номер: 23:47:0307003:2491 этаж 817, 5 кв. м, цокольный этаж 409, 8 кв. мМатериал стен: панельныйПерекрытия: железобетонныеКоммуникации: водоснабжение, канализация, отопление, электричество 100кВт с возможностью увеличения, охранно-пожарная сигнализация и система кондиционированияПомещение не требует капитальных вложений, кабинетная система с легковозводимыми перегородками позволяет легко трансформировать пространство под различные нужды. Подъезд свободный, напротив здания имеется большая парковка для автомобилей. Объект обладает выгодным расположением в самом центре Новороссийска, на первой линии, на пересечении улиц Исаева и Лейтенанта Шмидта. Район с развитой инфраструктурой, высокой транспортной и пешеходной доступностью, а также в непосредственной близости к морю (Цемесская бухта), набережной и ключевым городским объектам. Ближайшая остановка общественного транспорта ''Улица Исаева'', расположена в 50 метрах от объекта. Через остановку проходят два троллейбусных и один автобусный маршрут.Факторы инвестиционной привлекательности:Расположение в историческом и деловом центре города, в непосредственной близости от ключевых достопримечательностей, административных и офисных зданий, а также зон отдыха, создает благоприятную среду для ведения бизнеса и обеспечивает высокий трафик.Три входа/выхода позволяют эффективно зонировать пространство, что увеличивает арендный потенциал и ликвидность объекта. Наличие всех центральных коммуникаций минимизирует операционные и коммунальные расходы, что является значительным преимуществом для инвестора.Хорошее состояние объекта исключает необходимость крупных первоначальных вложений, позволяя быстро начать получать арендный доход.Отличная транспортная доступность, охватывающая как личный, так и общественный транспорт, расположение на первой линии с удобным въездом и выездом в сочетании с наличием вместительной парковкой делают объект максимально привлекательным для арендаторов и их клиентов.Ознакомиться с документацией можно на электронной торговой площадке Росэлторг. Ссылка на торги: https://www. roseltorg. ru/procedure/COM14042600148/1Подать заявку на участие в торгах можно до 13. 05. 2026, 23:59 (МСК)Начальная цена объекта: 89 000 000 руб.
1227 м2
- Показать контакты
- Добавить в избранное
1227 м2
89 000 000
72 517 /м2
