Отдельностоящее здание
Советов, 48 Показать на карте
Советов, 48 Показать на карте
Новороссийск
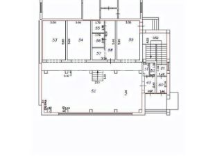
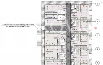
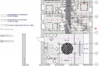
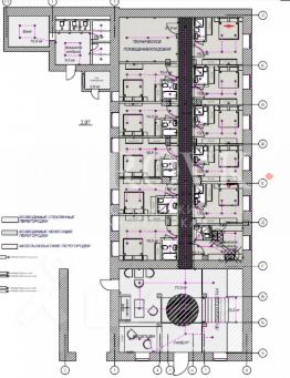
Предлагается 2-х этажное отдельно стоящее здание в центре города Новороссийск с согласованным проектом под бутик-отель!!!Готовое инвестиционное решение для создания премиального отеля на 24 номера! ВАЖНО: первая линия, 5 мин пешком до Набережной Адмирала Серебрякова, Морского вокзала, Форумной площади!Цена снижена и предложение ограничено по времени!- Общая площадь 683,7 м2,- земельный участок 6,3 сотки, - высота потолков каждого этажа 4 м.- Инфраструктура: - Подъездные пути асфальтированы,- электричество, водоснабжение и водоотведение.- электрическая мощность 100 кВт,- наземная парковка на 10 машин.Здание требует капитальной реконструкции, является памятником архитектуры.Полностью подготовлен Проект ПЗ АР КР, эскизный проект, Проект организации реставрации, Мероприятия по обеспечению сохранности ОКН и переоборудования его в гостиницу на 24 номера, получен полный пакет согласований с органами охраны памятников.Это сэкономит инвестору от 1,5 до 2 лет времени и значительные средства на прохождение всех инстанций. Готовый проект под отель позволяет превратить историческую ценность в мощный маркетинговый инструмент. Проживание в памятнике архитектуры — ключевое преимущество для привлечения туристов, ищущих аутентичный опыт.Отсутствие прямых аналогов на рынке.Идеальное расположение: Центральная историческая часть города, главная улица. Высочайшая пешеходная и транспортная доступность. Непосредственная близость к морскому вокзалу, парковым аллеям. Объект имеет градоформирующее значение.Долгосрочный премиальный актив и возможность сохранить историю с ее последующей успешной монетизацией.Рассмотрим обмен на жилую или коммерческую недвижимость в Питере или Москве.Легко купить: собственность физ. лица, без обременений, быстрый выход на сделку.Гарантия юридической чистоты сделки от компании. Звоните. Записывайтесь на показ объекта прямо сейчас. Оперативно покажем!Рады будем ответить на все ваши вопросы с 9:00 до 21:00.
683 м2
- Показать контакты
- Добавить в избранное
683 м2
350 000 000
511 920 /м2
